We have renovated the parts of the castle that we use, in order to live comfortably here. There are two finished apartments, and the entrance and the halls leading to them are also renovated. When visiting Klevenow one only sees renovated areas, until looking behind some of the closed doors. Depending on what the next owner would like to do, the other parts can be renovated in such a way to suit their needs. We have good contacts to craftsmen, building suppliers, etc which we will share with the new owner. If wished for, we can accompany the renovation until it is done. This can be of value if the new owner lives far away during the renovation time. You can trust us to help you, if you ask for our help, in renovating the castle to suit your needs.

Upper floor

Upper floor

The blue areas are renovated. The grey areas are stripped down and partially renovated.
To have a closer look at the plan right click with your mouse and save the graphic to a file. Then open this file with a graphic program.

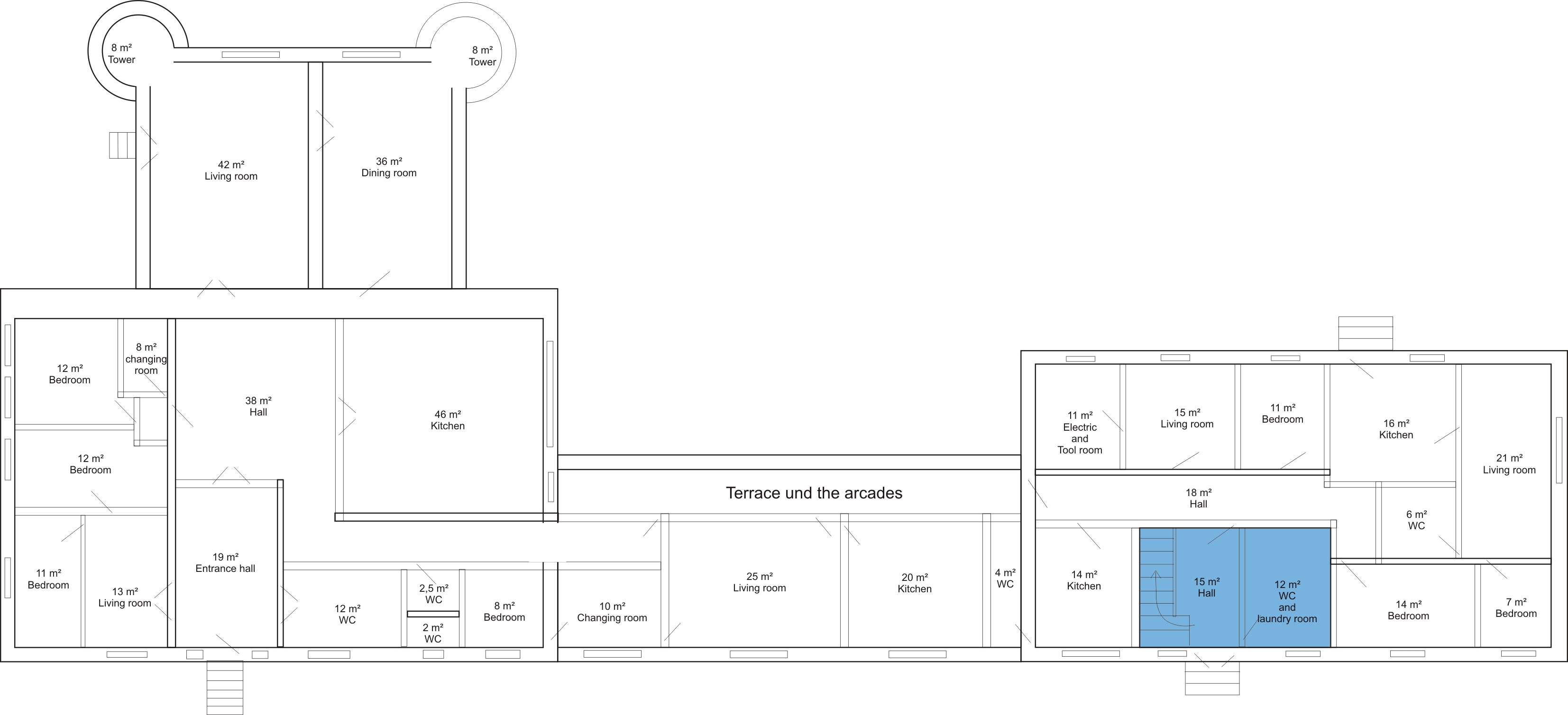
Ground floor

Ground floor

The blue areas are renovated, while the other areas are stripped down and await renovation.
To have a closer look at the plan right click with your mouse and save the graphic to a file. Then open this file with a graphic program.

The grounds

The Grounds

The map above shows the property that belongs to Castle Klevenow, and that of some of the neighbours. During communist times the East Germans used the park for a variety of purposes, and some of these are left over as neighbours. The protestent church takes care of the chapel (marked in purple), a neighbour has renovated the former horse stable at the entrance (marked in yellow), there is a nicely renovated nursery school for children up to six years old (marked in green), and a soccer field and club house (marked in red). The common cobblestone driveway is marked in pink, and the black line is the road outside of the property. The driveway, the nursery school and the soccer field all belong to the community. Soccer games are held every two weeks during the playing season for this small regional team (where just a few spectators come) including the present owners of the castle, now and then! Training is done at a field across the street, to keep the field in good shape.

There is a certain degree of interest on the part of all parties to sell the various properties to the owner of the castle. The monument protection authority is very much in favor of this. If the new owner would like to have all of the properties, it would be best to speak with the present owners of teh other properties. We have found these neighbours pleasent and non-obtrusive. In our opinion, the property is easily large enough for all to live harmoniously and peacefully together.